Speaker picture

Gemeinsam das Beste finden – das Kommunale Denkmalkonzept (KDK) in Bayern

Thomas Gunzelmann

Bayerisches Landesamt für Denkmalpflege

Hamburger Städtebauseminar

Mittwoch, 12. April 2023

Das Kommunale Denkmalkonzept (KDK) –
Idee und Entwicklung

Situation Denkmalpflege und Planung in Deutschland

  • Staatliche Denkmalpflege: überwiegend administrative und reaktive Rolle im Bau- und Umbaugeschehen

  • Denkmalpflege von sich aus aktiv: Erstellung von Denkmalverzeichnisse oder Denkmallisten, Erarbeitung der Denkmalinventare und Denkmaltopographien

  • Denkmalpflege im Rahmen von Stadtentwicklungsprozessen: eher reaktive Position

* Ausnahme: Denkmalpflegeplan in manchen Bundesländern (zu diskutieren)

Denkmalpflegeplan

  • Verankert im Denkmalschutzgesetz

  • In Nordrhein-Westfalen und Hamburg sowie nach 1989 auch in Brandenburg, Sachsen-Anhalt, Thüringen und Berlin

Denkmalpflegeplan Hamburg: Beispiel Gartenstadtsiedlung Berne 2012-2018

Erarbeitet durch WEGENERARCHITEKTEN BDA, Neustadt Holstein mit Gartenstadt Hamburg e.G. und dem Denkmalschutzamt

  • Band 1: baugeschichtliche Dokumentation und detaillierte Bestandserfassung

  • Band 2: umfangreiche Richtlinien für eine denkmalgerechte Entwicklung der Siedlung unter Berücksichtigung aktueller und und zukunftsorientierter Nutzungsanforderungen.

Denkmalpflegeplan Hamburg: Beispiel Gartenstadtsiedlung Berne

Übersichtsplan Anordnung des Nebengebäudes auf dem Grundstück, M 1:250 © WEGENERARCHITEKTEN BDA, Neustadt Holstein

Denkmalpflegeplan Hamburg: Beispiel Gartenstadtsiedlung Berne

Übersichtsplan Anordnung des Nebengebäudes auf dem Grundstück, M 1:250 © WEGENERARCHITEKTEN BDA, Neustadt Holstein

Würdigung: Praxis des Denkmalpflegeplans

  • Vergleichsweise wenige umgesetzt

  • In der Praxis zumeist ein regulativer Ansatz des Denkmalpflegeplans

  • Möglichkeiten des Instrumentes „bei weitem nicht ausgelotet“

  • geringe Neigung der Kommunen, sich selbst mit vermeintlich restriktiven Instrumentarien in der eigenen Stadtentwicklung zu behindern

Die Situation in Bayern: Vorgeschichte in Bayern

  • Seit dem Ende der 1980er Jahre hat das Bayerische Landesamt für Denkmalpflege informelle Ansätze in der städtebauliche Denkmalpflege verfolgt

  • Wir sehen Dörfer und Städte als ein komplexes Gefüge von baulichen, städtebaulichen, landschaftlichen, ganz allgemein räumlichen Strukturen als Ergebnis historischer politischer, wirtschaftlicher, sozialer und religiöser Prozesse

  • Mittlerweile etwa 1050 Dörfer und 70 Städte (weit überwiegend Kleinstädte und Märkte) bearbeitet.

Der Ursprung: „Denkmalpflegerischer Erhebungsbogen zur Dorferneuerung“

Aufbau des denkmalpflegerischen Erhebungsbogens

Denkmalpflegerische Erhebungsbögen in Bayern seit 1987

Inhalt des „Denkmalpflegerischen Erhebungsbogens zur Dorferneuerung (DEB)“

Die Werte des historischen Dorfs in Text, Bild und Karten: Beispiel: Prosselsheim, Lkr. Würzburg, Ausarbeitung. Dr. Thomas Büttner

Beispiel eines DEB – Altershausen

Altershausen, Stadt Königsberg i. Bayern, Lkr. Haßberge (Thomas Gunzelmann 1993, retrodigitalisiert)

Standardisierung – Denkmalwerte

BLfD, Musterlegende städtebaulich-denkmalpflegerische Untersuchungen in Bayern

KDK – Überlegungen

  • Seit 2015 sollten Prozesse der aktuellen Stadtentwicklung stärker mit denen der Bewahrung des kulturellen Erbes zusammengedacht werden, und dies unter möglichst umfassender Beteiligung der Bürger.

  • Am Ende dieser Überlegungen stand das Projekt „Kommunales Denkmalkonzept (KDK)“.

Aufbau des Kommunalen Denkmalkonzepts

Grundlegende Struktur des Kommunalen Denkmalkonzepts (KDK). Entwurf: Thomas Gunzelmann, Grafik: Anna Hitthaler/Lisa Schuylenburg

Thematische und räumliche Anpassung des KDKs an die spezifischen Herausforderungen der Kommune 

Ausprägungen des Kommunalen Denkmalkonzepts

KDK im Verbund informeller Entwicklungsplanungen

Städtebauförderung, Ländliche Entwicklung und Denkmalfachbehörde als vernetzter Träger von Ortsentwicklungsplanungen in Bayern. Entwurf: Thomas Gunzelmann, Grafik: Lisa Schuylenburg

Akteure des Kommunalen Denkmalkonzepts. Entwurf und Grafik: Thomas Gunzelmann

Hauptmerkmale des kommunalen Denkmalkonzepts (KDK)

Die Grundmerkmale des KDKs folgen einer „5-P-Regel“.

  • Prozess

  • Personen (people)

  • Partizipation

  • Projekte

  • Praxis

Modul 1 – Überblick

Erarbeitung: Büro Reichert, Stadt und Denkmalpflege, Bamberg

Das Modul 1 dokumentiert und bewertet den baulichen und städtebaulichen Bestand eines historischen Ortskerns oder eines Quartiers

Es benennt in Text, Bild und Karte die Denkmalwerte im weitesten Sinn und vermittelt sie.

Ergebnisse Modul 1 – Fotodokumentation – Katalog der Denkmalwerte

Raumsituationen mit historischer Bedeutung

Kirchplatz in Münchberg: aktuelle Situation. Fotos: Büro Reichert, Stadt und Denkmalpflege, Bamberg

Kirchplatz in Münchberg: historische Situation. Fotos: Slg. Foerster/Stadtarchiv Münchberg

Bauten mit historischer Bedeutung

Beispiel eingetragenes Baudenkmal. Erarbeitung: Büro Reichert, Stadt und Denkmalpflege, Bamberg

Beispiel erhaltenswerter, ortsbildprägender Bau. Erarbeitung: Büro Reichert, Stadt und Denkmalpflege, Bamberg

Baudetails mit historischer Bedeutung

Historische Türen. Erarbeitung: Büro Reichert, Stadt und Denkmalpflege, Bamberg

Historische Außentreppen. Erarbeitung: Büro Reichert, Stadt und Denkmalpflege, Bamberg

Ergebnisse Modul 1 – Karte

Qualitäten oder Stärken aus Sicht des städtebaulichen Erbes: die Karte der denkmalpflegerischen Interessen. Erarbeitung: Büro Reichert, Stadt und Denkmalpflege, Bamberg

Modul 2 – Überblick

  • Erarbeitung des Handlungsbedarfs aus städtebaulich-denkmalpflegerischer Sicht.

  • Entwicklung von Leitlinien und Zielen für die Erhaltung und Entwicklung von Denkmalwerten

  • Entwicklung von Schwerpunkten und Maßnahmen

  • Moderation des Prozesses unter Beteiligung der wichtigsten Akteure

  • Einbindung der Öffentlichkeit

Modul 2 A – Handlungsbedarf aus städtebaulich-denkmalpflegerischer Sicht

Einstieg:

„SWOT-Analyse”: Analyse der Stärken, Schwächen, Möglichkeiten und Gefährdungen

Modul 2 A – Schwächen

Strukturmodell der Schwachstellen des historischen Siedlungskerns in Bezug auf den Denkmalwert. Entwurf: Thomas Gunzelmann, Grafik: Lisa Schuylenburg

Modul 2 A – Erhaltungszustand (Sanierungsbedarf) – Gebäudeebene

Renovierungsbedürftige oder baufällige Gebäude – Beispiel KDK Ostheim v. d. Rhön. Fotos: Büro Wegner, Stadtplanung, Veitshöchheim

Modul 2 A – Funktionale Schwächen – Städtebauliche Ebene

Leerstehende Gebäude in Küps Mai 2017. Erarbeitung: Büro transform, Bamberg

  • 16 leerstehende Gebäude
  • 32 Gebäude mit Eigentümern über 70

Modul 2 A – Strukturelle Schwächen – Städtebauliche Ebene (2)

Abriss eines ganzen Viertels im historischen Stadtzentrum. Luftbild: Klaus Leidorf

Modul 2 A – „Schwächenplan“

„Plan des Handlungsbedarfs aus städtebaulich-denkmalpflegerischer Sicht“ für Marktzeuln. Erarbeitung: Büro Reichert, Stadt und Denkmalpflege, Bamberg/ Büro RSP, Architektur und Stadtplanung, Bayreuth

Modul 2 B – Analyse der Rahmenbedingungen (1)

  • Wirtschaftliche, sozialräumliche und demografische Situation der Gemeinde

  • Kommunale Planungshoheit

    • Formale Planung

      • Flächennutzungsplan und Bebauungsplan

      • Kommunale Gesetzgebung: Gestaltungssatzung oder Erhaltungssatzung

Modul 2 B – Analyse der Rahmenbedingungen (2)

Modul 2 B – Analyse der Rahmenbedingungen (3)

„weiche“ Rahmenbedingungen

  • Vorhandenes Potenzial für bürgerschaftliches Engagement

  • Einstellung der lokalen Politik

  • Leistungsfähigkeit der lokalen Verwaltung

  • Interaktion mit formellen und informellen Akteuren

Modul 2 C – Leitlinien, Ziele und Maßnahmen

  • Aufbau eines kohärenten Zielsystems für den Umgang mit den Denkmalwerten

  • Systematisch und strukturiert nach Maßstabsebenen und Teilbereichen

Modul 2 C – Empfehlungen im Hinblick auf historische Strukturen

Zum Beispiel:

  • Verzicht auf eine weitere Verdichtung

  • Freihalten von historischen Grün- und Freiflächen

  • Mögliche Beseitigung von störenden und jüngeren Bauten

  • Erhaltung charakteristischer Hof- und Parzellenstrukturen

  • Erhaltung städtebaulicher Brüche, die für die Geschichte des Ortes bedeutsam sind

  • Verzicht auf einen überzogenen Ausbau von Straßen und Wegen

Modul 2 C – Leitlinien, Ziele und Maßnahmen – Plan

Leitlinien und Maßnahmen am Beispiel des KDK Küps. Erarbeitung: Büro transform, Bamberg

Modul 2 C – Leitlinien, Ziele und Maßnahmen – Legende

Legende des Ziel- und Maßnahmenplans von Küps. Erarbeitung: Büro transform, Bamberg

Modul 3 – Möglichkeiten

  • Moderation und Mediation von Bürgerbeteiligungsprozessen bei Planung und Umsetzung

  • Finanzielle und technische Unterstützung für Machbarkeitsstudien, städtebauliche Nutzungsstudien, denkmalpflegerische Voruntersuchungen

  • Aufstellung eines Beratungsfonds für Denkmalobjekte

  • Erarbeitung von Exposés mit Aufmaß und Nutzungskonzepten für leerstehende Objekte mit veräußerungsbereiten Eigentümern

  • Unterstützung bei der Vermittlung von Denkmalwerten zur Stärkung der lokalen Identität (Führungen, Ortsrundwege, Ausstellungen, Apps etc)

  • Workshops zur Fortbildung von Denkmaleigentümern und Interessierten

  • Und vieles mehr…

Modul 3 – Machbarkeitsstudie für die neue Nutzung eines denkmalgeschützten oder schützenswerten Gebäudes

  • Verformungsgerechtes analytisches Gebäudeaufmaß

  • Tragwerksgutachten nach den Richtlinien des BLfD mit Schadenskartierung

  • Restauratorische Untersuchung und bauhistorische Analyse (Baualterspläne)

  • Fotodokumentation

  • Erarbeitung eines nachhaltigen Nutzungskonzeptes gemeinsam mit den lokalen Akteuren der Ortsentwicklung im Sinne einer „Planungswerkstatt” unter Einbeziehung des städtischen Umfeldes

    • Beteiligung der interessierten Akteure vor Ort
    • Entwicklung von Nutzungsvarianten und deren Priorisierung
    • Historisch gewachsene und eventuell neu zu entwickelnde Strukturen können in einer sinnvollen Kombination vorgeschlagen werden
  • Kostenkalkulation

Modul 3 – Verformungsgerechtes analytisches Gebäudeaufmaß

KDK Mainbernheim Modul 3 – Herrnstraße 35 und 37 – Längsschnitt. Erarbeitung: Schlicht Lamprecht Kern Architekten, Schweinfurt

Modul 3 – Städtebaulicher Entwurf

KDK Mainbernheim Modul 3 – Herrnstraße 35 and 37 – Aktueller Zustand. Erarbeitung: Schlicht Lamprecht Kern Architekten, Schweinfurt

KDK Mainbernheim Modul 3 – Herrnstraße 35 and 37 – Zielsetzung. Erarbeitung: Schlicht Lamprecht Kern Architekten, Schweinfurt

Modul 3 – Nutzungskonzept

KDK Mainbernheim Modul 3 – Herrnstraße 35 und 37 – Nutzungskonzept als Volumenmodell. Erarbeitung: Schlicht Lamprecht Kern Architekten, Schweinfurt

Modul 3 – Nutzungskonzept

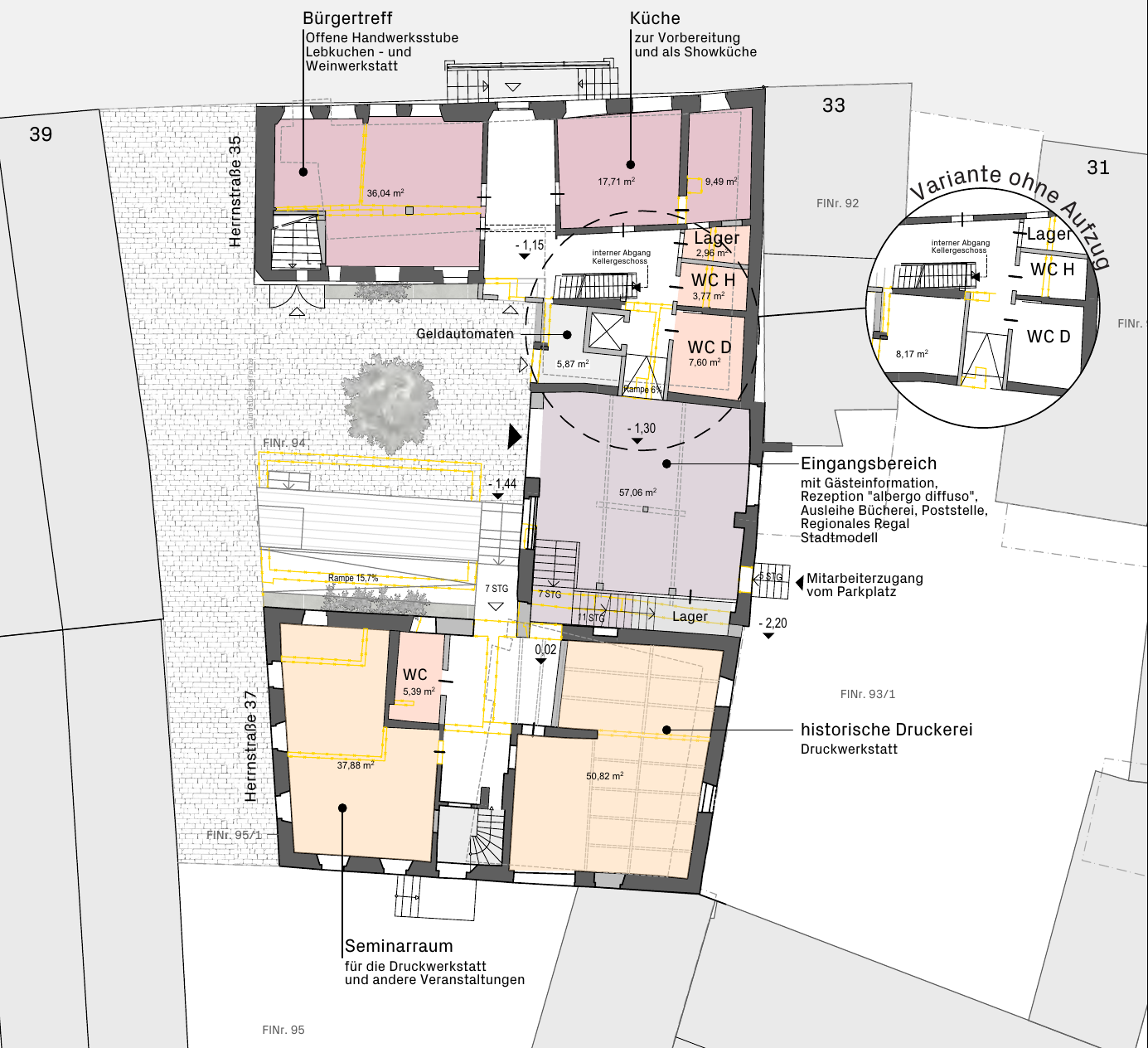
KDK Mainbernheim Modul 3 – Herrnstraße 35 und 37 – Nutzungskonzept für die Erdgeschossebene. Erarbeitung: Schlicht Lamprecht Kern Architekten, Schweinfurt

Beispiele

Das KDK Ostheim v.d.Rhön – Die Kommune agiert für die Bürger

  • Gebietsbezogen: Stadtkern einer Kleinstadt
  • Hohes Engagement der Kommune und einzelner Bauherren

Das Interkommunale Denkmalkonzept Oberes Werntal/Werntal-Dorf (IKDK) – Aus Erfassung und Vermittlung entstehen Angebote für Bürger

  • Thematisch: Nur historische Bausubstanz in privaten Eigentum
  • Zusammenarbeit zweier Fördergeber

Das KDK Fichtelberg – Wenig Hoffnung, aber viele Ideen

  • Objektbezogen: Kleines historisches Industriequartier
  • Strukturschwäche, aber junges engagiertes Team

Das KDK Aub – Bürger schaffen Projekte

  • Gebietsbezogen: Stadtkern einer Kleinstadt
  • Hohes Engagement von Kommune und Bürgerschaft

KDK Ostheim v.d.Rhön

Lage Ostheim v.d.Rhön

Ostheim als Denkmalort

KDK Ostheim v.d.Rhön

Historische Dachlandschaft Ostheim v.d. Rhön. Foto: Stadtarchiv Ostheim v.d.Rhön

KDK Ostheim v.d.Rhön

Dachlandschaft Ostheim v.d. Rhön heute. Foto: Thomas Gunzelmann

Modul 1 – Beispielseite Straßenraum

Straßenraum „Am großen Stein“. Foto: Matthias Wieser

Modul 1 – Beispielseite Erhaltenswerte, ortsbildprägende Bauten

Modul 1: Erarbeitung: Prof. Dr. Matthias Wieser, Eibelstadt

Modul 1 – Historische Analysekarten

Historische Sonderbauten in Ostheim v.d.Rhön. Erarbeitung: Prof. Dr. Matthias Wieser, Eibelstadt

Modul 2 – Maßnahmen- und Projektplan

Plan der Maßnahmen und Projekte in Ostheim v.d. Rhön. Erarbeitung Büro Wegner, Stadtplanung, Veitshöchheim

Modul 2 – Maßnahmen- und Projektplan (2)

Priorisierte Maßnahmen im KDK Ostheim

  1. Revitalisierung des Gerberhauses Steinig 4, Nutzungskonzept
  1. Sanierung “Gelbes Schloss” Marktstraße 48/50, evtl. Hotelnutzung
  1. Sanierung der Heimegasse 11, Wohnnutzung

  2. Sanierung Weißes Ross, Rossgasse 3

  1. Sanierung Amtshaus und Inwertsetzung der Gärten, Marktstraße 60
  1. Entwicklung des Quartiers Steinig / Torgasse
  1. Sanierung Manggasse 10

  2. Entwicklung/Sanierung des Areals Marktstraße 45

  3. Weiterentwicklung der “Lebendigen Kirchenburg” (auch Kultur)

  4. Aufwertung von Privatgärten (besondere Gärten z.B. Burgstraße 4)

KDK seit September 2018

  • Modul 1 historische Ortsanalyse (Prof. Dr. Matthias Wieser) 2019/2020

  • Modul 2 Denkmalpflegeplan (Büro Wegner, Stadtplanung, Veitshöchheim]) 2019/2020

  • Modul 3 Gelbes Schloss 3/2020

  • Modul 3 Amtshaus 2/2021

  • Modul 3 Alte Wagnerei 3/2021

  • Modul 3 Torgasse 1 - 7 12/2022

  • Modul 3 Ehemalige Nikolauskapelle 5/2023

KDK Ostheim v.d.Rhön – Module 3 in der Übersicht

KDK Ostheim v.d.Rhön

  • Stadt setzt Module 3 als Machbarkeitsstudien zur Vorbereitung der Sanierung problematischer Objekte ein

  • Problematisch bedeutet dabei: schwieriger Bau oder schwieriger Bauherr

  • Wird aber auch verwendet, um willige Bauherren zu aktivieren

Interkommunales Denkmalkonzept (IKDK) Oberes Werntal/Werntal-Dorf

Lage Oberes Werntal

Interkommunales Denkmalkonzept (IKDK) Oberes Werntal/Werntal-Dorf

Besonderheit:

  • Denkmalkonzept erstreckt sich über 10 Gemeinden mit 46 Ortsteilen

  • Veranwortlich ist die ILE (Interkommunale) Allianz Oberes Werntal

  • Das Projekt fördern zugleich das Amt für Ländliche Entwicklung (ALE) für Unterfranken und das Bayerische Landesamt für Denkmalpflege (BLfD). Das ALE übernimmt nach der Vorbereitungsphase der beiden Module 1 und 2 Förderungen der erhaltenswerten Bausubstanz, das BLfD versucht die Sanierung von besonders dringlichen Denkmalobjekten zu aktivieren.

Infoflyer für Hauseigentümer

IKDK Oberes Werntal/Werntal-Dorf

Prozess und Beteiligung. Grafik: architektur + ingenieurbüro perleth, Schweinfurt

IKDK Oberes Werntal/Werntal-Dorf

Prozess und Beteiligung. Grafik: architektur + ingenieurbüro perleth, Schweinfurt

IKDK Oberes Werntal/Werntal-Dorf

Teilnehmer der Vorstellung von Modul 2. Foto: Thomas Gunzelmann

IKDK Oberes Werntal/Werntal-Dorf

Ergebnisse Modul 1. Erarbeitung: Büro Reichert, Stadt und Denkmalpflege, Bamberg, Dr. Sabine Fechter, Faldungen, architektur + ingenieurbüro perleth, Schweinfurt

IKDK Oberes Werntal/Werntal-Dorf

Ergebnisse Modul 2 – Problemanalyse. Erarbeitung: architektur + ingenieurbüro perleth, Schweinfurt

IKDK Oberes Werntal/Werntal-Dorf

Ergebnisse Modul 2 – Ziele und Maßnahmen. Erarbeitung:architektur + ingenieurbüro perleth, Schweinfurt

IKDK Oberes Werntal/Werntal-Dorf

Ergebnisse Modul 2 – Ziel- und Handlungskonzept am konkreten Beispiel. Erarbeitung: architektur + ingenieurbüro perleth, Schweinfurt

IKDK Oberes Werntal/Werntal-Dorf

Vorschläge für die Durchführung von Modulen 3 (insgesamt 44). Erarbeitung: architektur + ingenieurbüro perleth, Schweinfurt

KDK Fichtelberg

Lage Fichtelberg

Fichtelberg als Denkmalort

KDK Fichtelberg

  • Gemeinde in peripherer Lage im Mittelgebirge (685 m ü. NHN)
  • Früher Fremdenverkehr, auch Wintersport, heute überalterte Fremdenverkehrsstrukturen und Klimawandel
  • 2012 zentrales Objekt des Tourismus, die „Kristall-Therme“ abgebrannt, juristische Streitigkeiten bis heute nicht gelöst

Neue Perspektiven für das Thermenareal, noch nicht begonnen

  • Gemeinde überschuldet, unter Finanzaufsicht

KDK Fichtelberg – Historisches Industriequartier

Werksgebäude des Berg- und Hüttenamtes Gottesgab am Fichtelberg 1874. Foto: Slg. Unterburger

KDK Fichtelberg – Übersicht

Topographische Übersicht Fichtelberg. Kartengrundlage TK 25 © Bayerische Vermessungsverwaltung

KDK Fichtelberg – Modul 1

Brauhaus, aktueller Zustand. Foto: Bernd Marr, Büro MEMVIER

KDK Fichtelberg – Modul 1

Kanzleigebäude, aktueller Zustand. Foto: Bernd Marr, Büro MEMVIER

KDK Fichtelberg – Modul 1

Ehemalige Flammofenhallte, aktueller Zustand. Foto: Bernd Marr, Büro MEMVIER

KDK Fichtelberg – Modul 1 – Gebäudedokumentation

Kanzleigebäude, sog. „Herrenhaus“. Erarbeitung: Büro MEMVIER, Bamberg

Mahlwerk mit Arbeiterwohnung. Erarbeitung: Büro MEMVIER, Bamberg

KDK Fichtelberg – Modul 1 – Baualterspläne

Untergeschoss. Erarbeitung: Büro MEMVIER, Bamberg

Erdgeschoss. Erarbeitung: Büro MEMVIER, Bamberg

KDK Fichtelberg – Mitwirkung: Team KDK

Kerngruppe vor Ort.

KDK Fichtelberg – Mitwirkung: Bürgerschaft

Mehrere Bürgerversammlungen mit Interessierten und potentiellen Akteuren. Foto: Lena Bonengel, Büro IF IdeenFinden

KDK Fichtelberg – Modul 2 – Ermittlung des Handlungskonzeptes

Gliederung des Areals in Handlungsbausteine. Erarbeitung: Büro iF IdeenFinden, Wunsiedel

Baustein 1: ehemaliges Bergamtsgebäude, später Gasthaus mit Brauerei. Erarbeitung: Büro iF IdeenFinden

KDK Fichtelberg – Modul 2 – Ermittlung des Handlungskonzeptes

Ehemaliges Bergamtsgebäude, Zustand und Potential. Erarbeitung: Büro iF IdeenFinden

Vision für Baustein 1: Gastronomische Nutzung revitalisieren. Erarbeitung: Büro iF IdeenFinden

KDK Fichtelberg – Weiteres Vorgehen

Notsicherung Hang am ehemaligen Mühlgraben

Notsicherung Dach Herrenhaus

KDK Fichtelberg – Weiteres Vorgehen – Modul 3 Machbarkeitsstudie „Herrenhaus“

Notsicherung Hang am ehemaligen Mühlgraben. Erarbeitung: Büro iF IdeenFinden

Leistungsbild Machbarkeitsstudie Herrenhaus. BLfD, Thomas Gunzelmann

KDK Aub

Lage Aub

Aub als Denkmalort

KDK Aub

  • Kleinstadt in peripherer Lage an der Grenze zu BW, strukturschwach
  • Einwohner: 1.563
  • Gut erhaltener historischer Stadtkern, Struktur historischer Quartiere ablesbar, Stadtmauer fast komplett einschließlich Grüngürtel erhalten
  • Denkmalensemble
  • Zahlreiche Leerstände und funktionale Verluste im historischen Ortskern, damit einhergehend teils schlechter Bauzustand

Ensemble Aub

KDK Aub – „Projekt AUF.MASS“

Aub – Marktplatz 19

Aub – Etzelstrasse 11 und 13

Aub – Hoffahrtgasse 6

KDK Aub – „Projekt AUF.MASS“ – Exposés

Marktplatz 19 - Denkmalfachliche Voruntersuchungen

Marktplatz 19 – Mögliches Nutzungskonzept

Marktplatz 19 – Vision und Fördermöglichkeiten

KDK Aub – „Projekt AUF.MASS“ – Öffentlichkeitsarbeit

KDK Aub – „Projekt AUF.MASS“ – Bürger als Akteure der Denkmalbörse

KDK Aub – „Projekt AUF.MASS“ – Interessierte stehen Schlange

KDK Aub – „Projekt AUF.MASS“ – Information am lebenden Objekt

Bürger informieren sich direkt im Gebäude (Marktplatz 19). Foto: Thomas Gunzelmann

KDK Aub – Modul 3: Notsicherung und Zugänglichmachung der „Neuen Synagoge“ durch ehrenamtliches Engagement

Aub Neue Synagoge (Neuertgasse 12), 1744

Aub Neue Synagoge Mikwe evt. Spätmittelalter

KDK Aub – „Neue Synagoge“ – Notsicherung durch Ehrenamtliche, unterstützt durch Architekt und Fachfirmen

KDK Aub – „Neue Synagoge“ – Ehrenamtliche bei der Beräumung des Synagogenraums

KDK Aub – „Neue Synagoge“ – Synagogenraum mit Tonnengewölbe und Frauenempore